Te koop Vrijstaande Villa Costa Del Sol La Capellania € 1.375.000,- Ref.nr: RSOR5217520
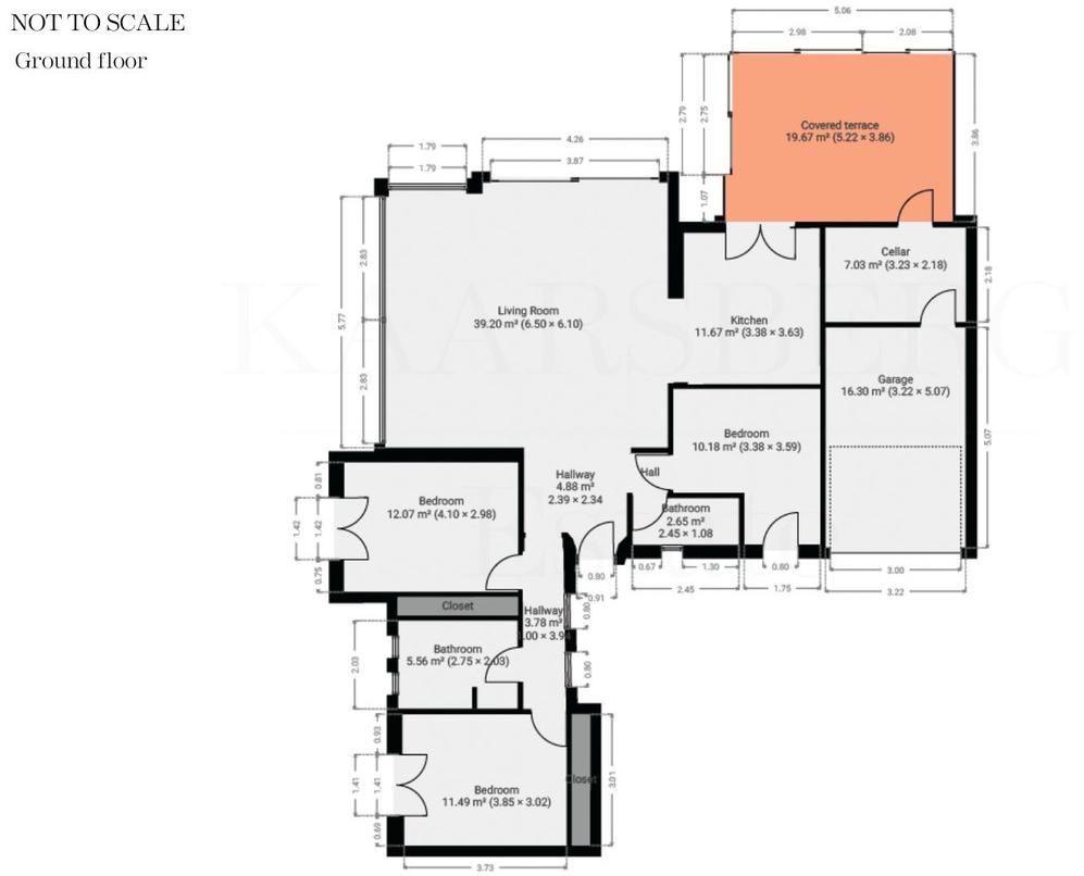
119m²
3
2
| Slaapkamers | 3 |
| Badkamers | 2 |
| Woonoppervlak | 119m² |
| Leefruimte | m² |
| Zwembad | ja |
| Tuin | ja |
| Parkeren | nee |
| Airco | %lng_% |
| Opslagruimte | %lng_% |
| Lift | %lng_% |
| Bouwjaar | 1984 |
| Verdieping | |
| Instelling: dicht bij winkels, dicht bij zee, dicht bij stad, urbanisatie | |
| Orientatie: Zuidoost, Zuid, Zuidwest | |
| Staat: uitstekend | |
| Zwembad: privé | |
| Klimaatregeling: airconditioning, warme airconditioning, koude airconditioning, U / F-verwarming, U / F / H-badkamers | |
| Uitzicht: zee, bergen, haven, panoramisch, zwembad, stedelijk | |
| Kenmerken: Overdekt terras, Uitgeruste inbouwkasten, Privé terras, WiFi, Berging, Bijkeuken, Badkamer en suite, Marmeren vloeren, Dubbele beglazing, Glasvezel | |
| Meubels: volledig gemeubileerd | |
| Keuken: volledig ingericht | |
| Tuin: privé, aangelegd, eenvoudig onderhoud | |
| Beveiliging: elektrische jaloezieën, alarmsysteem | |
| Parkeren: Garage, meer dan één, privé | |
| Hulpprogramma's: elektriciteit, drinkwater | |
| Categorie: Wederverkoop |