Te koop Residential Plot Costa Del Sol Mijas Costa € 695.000,-
Kans in het hart van Mijas Costa
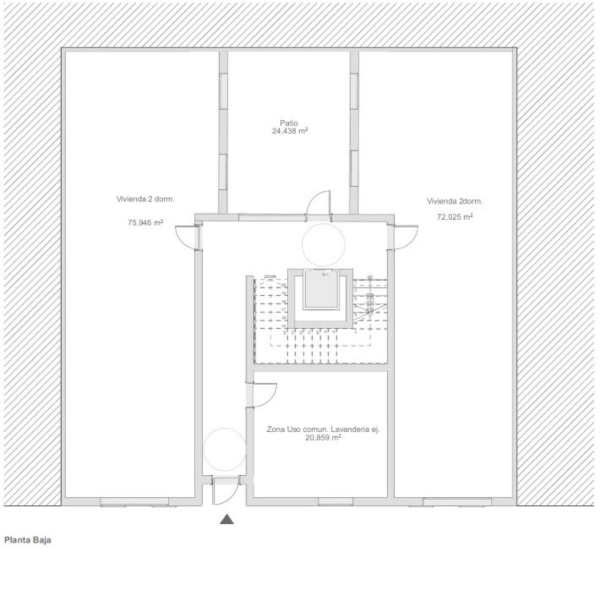
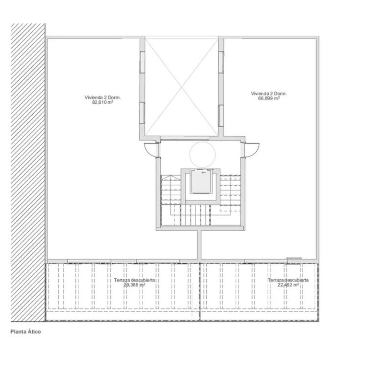
Charmant oud huis gelegen in het centrum van Mijas Costa, met een goedgekeurd project voor de bouw van een nieuwe ontwikkeling van 10 appartementen.
Geniet van een ongeëvenaarde locatie, dicht bij alle voorzieningen: winkels, restaurants, openbaar vervoer en alles wat u nodig heeft voor een comfortabel leven.
Ideaal als investering of woningbouw in een van de meest gewilde gebieden van de Costa del Sol.
“Inclusief huidig perceel en architectuurproject.”
???? Neem gerust contact met ons op voor meer informatie!
meer info