Te koop Finca - Cortijo Costa Del Sol Alhaurín De La Torre € 595.000,-
Dit indrukwekkende pand ligt op een schitterende locatie met uitzicht op de baai van Malaga en het Sierra de Mijas-gebergte.
Deze woning ligt op minder dan 4 km van het prachtige dorp Alhaurín de la Torre, op minder dan 5 minuten rijden van de bekende golfbaan Lauro en op slechts 20 minuten van de stad Málaga en de luchthaven. Het is een zeer ruime gezinswoning of een mogelijkheid voor een B&B op het platteland.
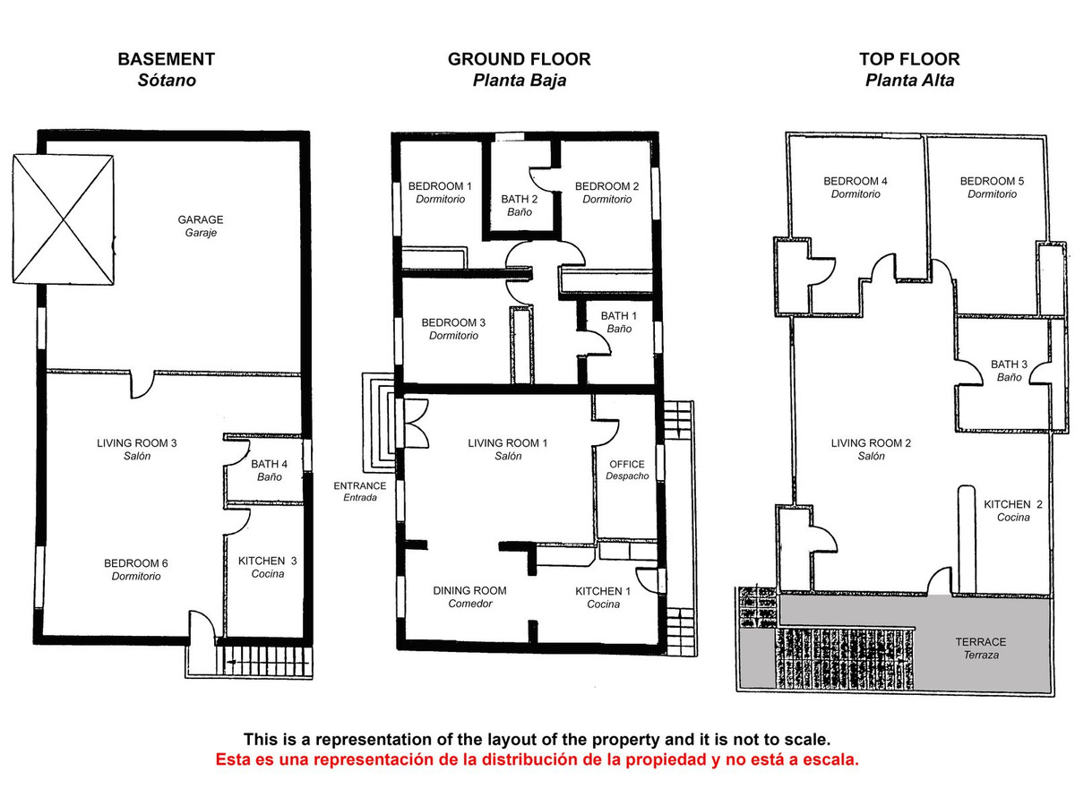
Het huis is verdeeld in 3 onafhankelijke woonruimtes.
Het appartement met 2 slaapkamers is bereikbaar via een buitentrap. Het appartement heeft een open woonkamer met keuken/eethoek, een gedeelde badkamer en een eigen terras met een fantastisch uitzicht op de zee en de bergen.
De begane grond beschikt over een ruime woonkamer met open haard, een woonkeuken, vier slaapkamers (hoofdslaapkamer met eigen badkamer) en een gastenbadkamer. Een overdekte veranda biedt een extra ruime eethoek met uitzicht op de baai van Malaga.
De kelder van 155 m² heeft een eigen toegang en biedt een ruime berging of een aparte woonruimte met badkamer. De garage biedt plaats aan 2 of 3 auto's. Naast de woning bevindt zich een aparte kijkruimte, die indien nodig extra parkeergelegenheid biedt.
Aan de achterzijde van het huis bevindt zich het zeer privéterras met zwembad. De tuin biedt veel privacy omdat er geen directe buren zijn en biedt uitzicht op de baai van Malaga.
meer info