Te koop Half vrijstaand huis Costa Del Sol Benalmadena € 760.000,-
**Prachtig geschakelde woning met 4 slaapkamers te koop in Benalmádena – modern comfort en toplocatie!**
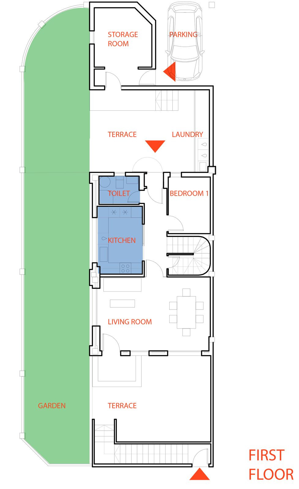
Ontdek deze prachtig gerenoveerde woning met **4 ruime slaapkamers**, **3 badkamers**, een **lichte woonkamer** en een **volledig uitgeruste en moderne keuken**.
Geniet de hele dag van de zon met **twee grote terrassen (totaal 50 m²)** op het oosten en westen, plus een privétuin (48 m²) met een speelruimte (27 m²), wasruimte, aparte berging en een eigen parkeerplaats.
De woning is voorzien van driedubbele beglazing, hoogwaardige buitenmuurisolatie, een bioklimatische pergola met ledverlichting, keramische en houten vloeren en inbouwkasten.
Ideaal gelegen op slechts een steenworp afstand van het openbaar vervoer, scholen, supermarkten en met gemakkelijke toegang tot de snelweg - een perfect gezinshuis in een onverslaanbare omgeving!
** Mogelijkheid tot uitbreiding met een aparte kelderunit van circa 60 m² **
### **Technische kenmerken**
**Ramen:** EUROFUTUR systeem van KÖMMERLING, glastype PL ULTRA N 4/20/6 mm.
**Bioklimatische Pergola:** 8x4 m, versterkt frame, LED-verlichting, merk *Solisysteme*.
**Zonwering voor het terras:** Duits merk *Markilux*.
**Buitenmuurisolatie:** Supafil 034 minerale wol (inblaasisolatie) biedt:
*Uitstekend **thermisch comfort**, doordat het koudewandeffect wordt geëlimineerd en de temperatuur binnenshuis gelijkmatig wordt verdeeld.
*Toegevoegde **akoestische isolatie** voor geluidsreductie.
*Milieuvriendelijk** materiaal, dat helpt de CO₂-uitstoot te verminderen.
*Vochtbestendig*, waterafstotend, niet-hygroscopisch.
*Ondersteunt de groei van schimmels of bacteriën niet. --- ###
**Juridische kennisgeving** Overeenkomstig decreet 218/2005 betreffende consumentenvoorlichting bij de verkoop en verhuur van onroerend goed in Andalusië: **Notariskosten, registratiekosten, overdrachtsbelasting (ITP), financiële kosten en andere kosten met betrekking tot de aankoop zijn niet inbegrepen in de vermelde prijs.**
meer info