Te koop Middle Floor Apartment Costa Del Sol Costalita € 995.000,-
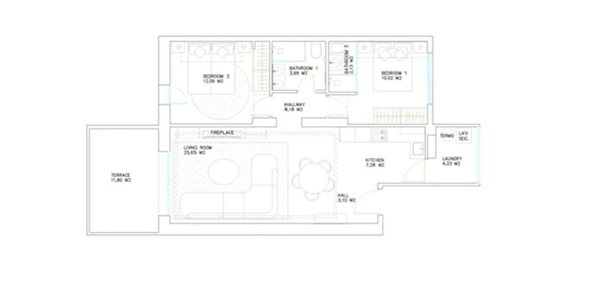
Dit prachtig gerenoveerde appartement met twee slaapkamers en twee badkamers biedt een prachtig uitzicht op zee en een stijlvolle en comfortabele woonervaring in een van Estepona's meest gewilde kustgebieden. Elk detail van het 100 m² grote interieur is volledig vernieuwd met een fris, eigentijds design dat hoogwaardige materialen combineert met moderne afwerkingen. Het lichte en gastvrije appartement is instapklaar en perfect geschikt voor een ontspannen leven aan zee. Een ruim terras van 11 m² vergroot de leefruimte en biedt een privéplek om te genieten van de rustige omgeving.
Deze woning is gelegen in de exclusieve urbanisatie Costalita, in een gewild complex aan het strand aan de Costa del Sol. Bewoners profiteren van weelderige, tropische tuinen, een prachtig gemeenschappelijk zwembad en directe toegang tot het strand en de schilderachtige boulevard. De omgeving biedt een breed scala aan voorzieningen in de buurt, waaronder restaurants, winkels, golfbanen en een lokale school in Cancelada. Met Puerto Banús op slechts 10 minuten rijden en het centrum van Estepona op ongeveer 12 minuten, biedt de locatie zowel gemak als prestige.
Het appartement is gelegen op het zuidwesten, waardoor de kamers de hele dag door van natuurlijk licht worden voorzien. Het is volledig gemeubileerd en beschikt over inbouwkasten, een volledig uitgeruste keuken en moderne klimaatbeheersingssystemen – inclusief airconditioning (warm en koud) en centrale verwarming – voor optimaal comfort het hele jaar door. Het afgesloten complex biedt bovendien extra beveiliging met een intercomsysteem, waardoor dit een ideale woning is voor iedereen die op zoek is naar een luxe en veilige woning aan het strand.
meer info