Te koop Herenhuis Costa Del Sol Cancelada € 585.000,-
Moderne stadswoning met uitzonderlijke faciliteiten in Cancelada
Dit stijlvolle herenhuis, gelegen in een van de modernste beveiligde woonwijken van Cancelada, biedt een verfijnde mix van comfort, design en lifestyle. Tegen een achtergrond van panoramisch uitzicht op de bergen en vanaf de begane grond uitzicht op de Middellandse Zee en de kust van Marokko, is de omgeving zowel sereen als inspirerend.
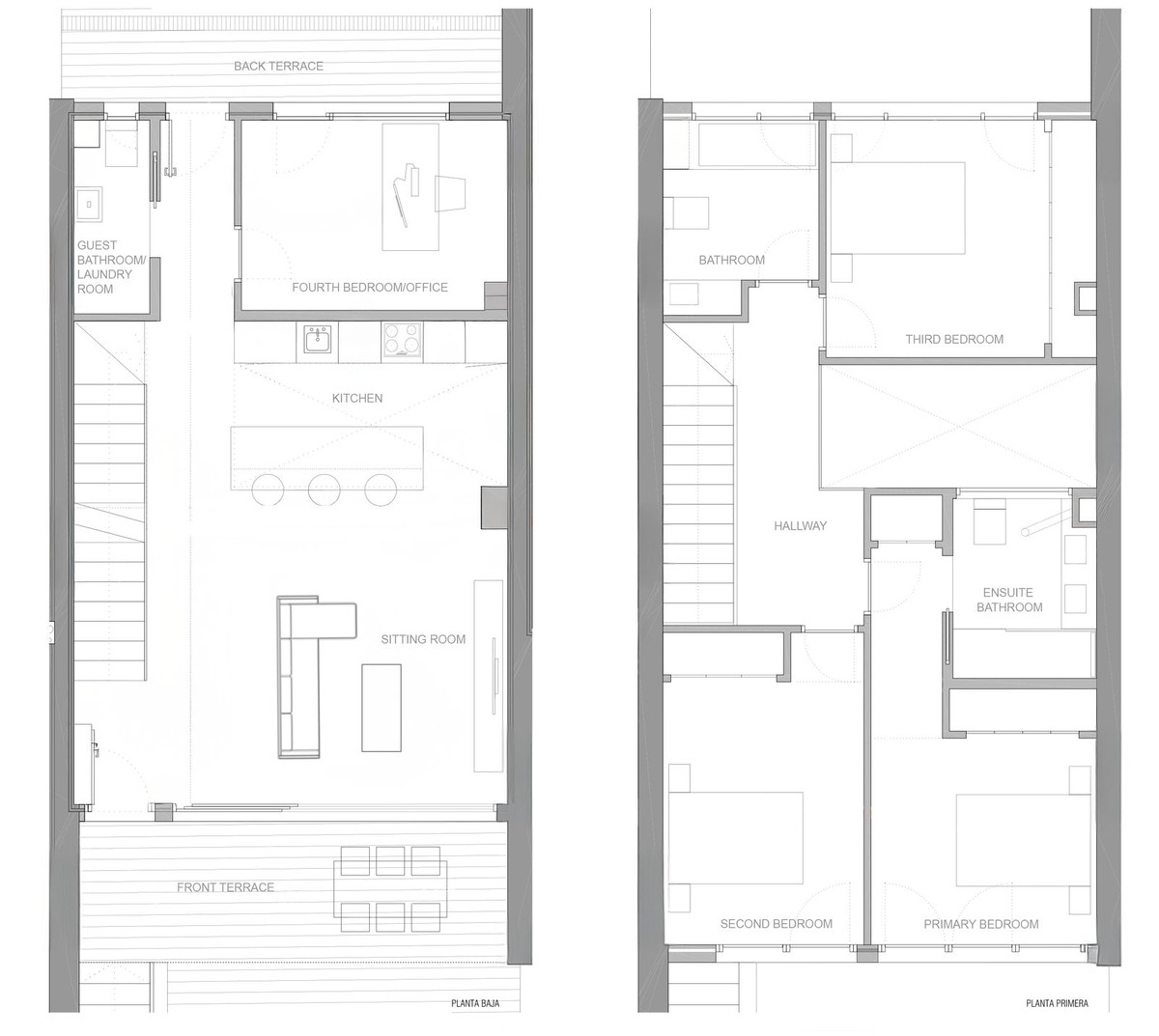
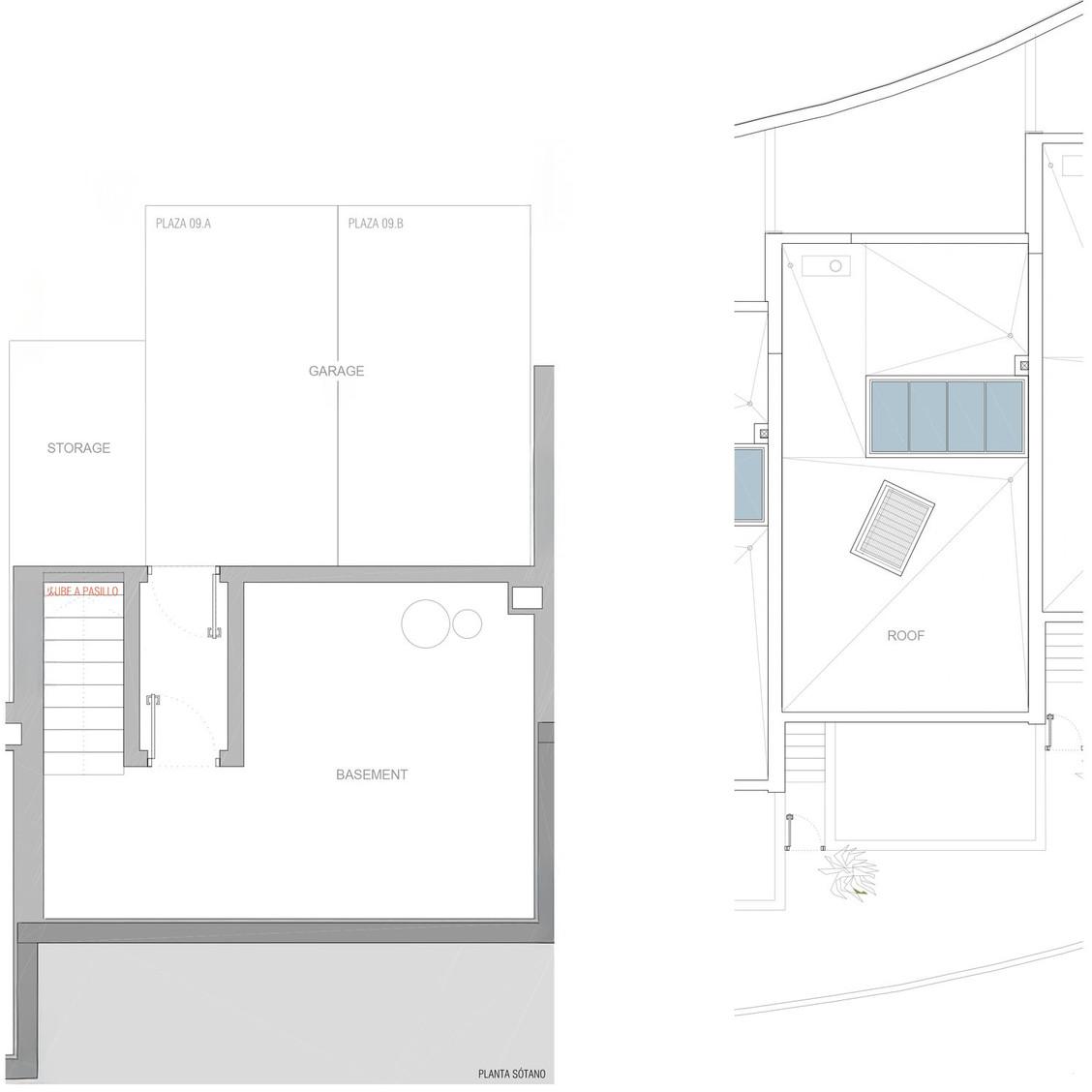
De woning is verdeeld over drie verdiepingen, met lichte, open leefruimtes die optimaal profiteren van natuurlijk licht. Op de begane grond bevindt zich een moderne keuken met een dakraam, die uitkomt op een ruime woon- en eetkamer met directe toegang tot privéterrassen. Met vier slaapkamers en drie badkamers, allemaal met natuurlijk licht, is de woning ideaal voor gezinnen, gasten of mensen die op zoek zijn naar extra werkruimte. Een ruime, multifunctionele kelder is direct verbonden met de ondergrondse parkeergarage, wat zorgt voor veelzijdigheid en gemak.
Bewoners genieten van een uitzonderlijk aanbod aan privévoorzieningen in het exclusieve clubhuis van de gemeenschap. Deze omvatten een groot buitenzwembad, een verwarmd binnenzwembad, een volledig uitgeruste fitnessruimte, een sauna en prachtig onderhouden tuinen. Het clubhuis beschikt ook over een eigen restaurant en een dakterras dat speciaal voor bewoners is gereserveerd.
Tot de extra voorzieningen behoren twee eigen ondergrondse parkeerplaatsen en een berging, waardoor praktisch dagelijks wonen gegarandeerd is.
De accommodatie ligt op slechts zes minuten van het strand en op korte rijafstand van Estepona, San Pedro, Puerto Banús en Marbella. U heeft vanuit de accommodatie eenvoudig toegang tot winkels, restaurants en essentiële voorzieningen, waardoor het beste van de New Golden Mile binnen handbereik is.
Deze woning is een uitstekende kans voor wie op zoek is naar een modern huis met uitstekende gemeenschappelijke voorzieningen, geschikt voor permanente bewoning, vakantiehuis of investering.
meer info