Te koop Residential Plot Costa Del Sol Mijas Golf € 210.000,-
Bouw NU! Perceel met bouwvergunning en ICIO betaald in Loma del Flamenco (Mijas Golf).
Schitterend perceel in de exclusieve woonwijk Loma del Flamenco (Mijas Golf), op slechts 5 minuten van El Esparragal. De woonwijk beschikt over reeds aangelegde wegen, rotondes en alle voorzieningen.
Het grootste concurrentievoordeel: Vergeet de frustratie en onzekerheid van vergunningen. Dit perceel wordt verkocht inclusief reeds verleende bouwvergunning (ICIO-belasting betaald - € 5.000) en een goedgekeurd basisontwerp.
De koper kan direct beginnen met bouwen!
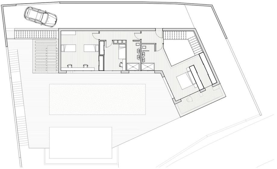
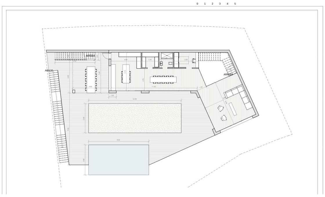
GOEDGEKEURDE PROJECTGEGEVENS (Eengezinswoning):
De ontworpen woning is modern en functioneel, met twee verdiepingen rondom een zijterras dat zorgt voor licht en ventilatie.
Ongeëvenaard uitzicht: Het huis en het goedgekeurde zwembad zijn ontworpen om optimaal te profiteren van het ongelooflijke, onbelemmerde uitzicht op het imposante gebergte van Mijas (Sierras de Mijas) en het spectaculaire uitzicht op zee vanaf de bovenverdieping.
Indeling:
Begane grond/toegangsniveau (dagverblijf): woonkamer, keuken/eetkamer, toilet, patio en kantoor.
Bovenverdieping (slaapgedeelte): Hoofdslaapkamer met en-suite badkamer en kleedkamer, plus twee extra slaapkamers en een badkamer.
Extra voordelen inbegrepen:
Goedgekeurd zwembad in het project (klaar voor uitvoering).
Goedgekeurd basisproject (mogelijkheid tot aanpassingen in overleg met de architect).
Alle gemeentelijke heffingen zijn volledig betaald (bewijs van schuldenvrijheid beschikbaar).
Ideaal voor: Particulieren die hun huis willen bouwen zonder bureaucratische wachttijden of kleine projectontwikkelaars die dringend met de bouw moeten beginnen.
Documentatie beschikbaar voor de investeerder/koper: Hypotheekakte (Nota Simple), taxatierapport, bouwtekeningen en vergunning.
Het is tijd om te beginnen met bouwen, niet om te wachten!
meer info