Te koop Half vrijstaand huis Costa Del Sol Mijas Golf € 445.000,-
Met genoegen presenteren wij deze prachtige halfvrijstaande woning in Mijas Golf, een van de meest prestigieuze, rustige en gewilde woonwijken aan de Costa del Sol. Deze woning onderscheidt zich door zijn royale afmetingen, uitstekende indeling, overvloed aan natuurlijk licht en de comfortabele, ontspannen levensstijl die het biedt, omgeven door natuur.
Toplocatie
Mijas Golf staat bekend om zijn veilige, goed onderhouden omgeving en de perfecte integratie met het omringende landschap, te midden van uitgestrekte groene gebieden en internationaal gerenommeerde golfbanen. De accommodatie ligt op korte rijafstand van:
La Cala de Mijas
Fuengirola
De stranden van de Costa del Sol
Restaurants, supermarkten, scholen en alle essentiële diensten.
Snelle toegang tot de snelweg A-7 met directe verbindingen naar Málaga, Marbella en de luchthaven.
Een ideale locatie, zowel voor permanente bewoning als voor investering in vakantieverhuur, dankzij de grote vraag in de omgeving.
Eigendomsdetails
Met een totale bebouwde oppervlakte van 318,11 m2 is de woning verdeeld over drie verdiepingen en ontworpen om comfort, functionaliteit en ruime woonruimtes te bieden die aan verschillende levensstijlen kunnen worden aangepast.
Kelderverdieping – 51 m2
Privé, afgesloten garage met directe toegang tot het terrein.
Grote opslagruimte
Gang
Overdekte veranda
Ideaal voor wie op zoek is naar comfort, veiligheid en extra ruimte voor opslag of hobby's.
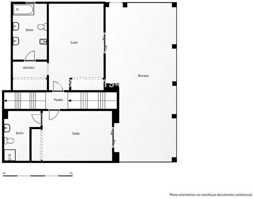
Begane grond – 84 m2
Twee slaapkamers met eigen badkamer, elk met een complete badkamer.
Toegang tot een terras van 30 m2 dat de verdieping overspoelt met natuurlijk licht.
Perfect als aparte ruimte voor gasten of familie.
Een zeer veelzijdige verdieping die privacy en royale ruimtes biedt.
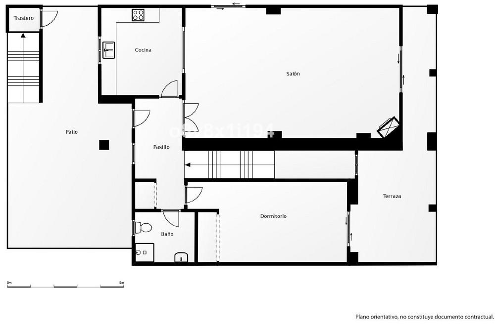
Bovenverdieping – 55 m2
Entreehal
Ruime en lichte woonkamer
Volledig uitgeruste keuken
Extra slaapkamer
Gastentoilet
Een terras van 27 m2 en een patio van 25 m2, ideaal om te ontspannen en te genieten van het buitenleven.
Buitenruimtes en extra's
Het pand beschikt over diverse fraai vormgegeven buitenruimtes:
49 m2 zijtuin, perfect voor een ontspanningshoekje of een kleine moestuin.
Extra parkeerruimte buiten
Toegang tot een gemeenschappelijk zwembad in een rustige, zonnige omgeving.
Alles is zorgvuldig ontworpen om het hele jaar door van het mediterrane klimaat te kunnen genieten.
meer info