Te koop Residential Plot Costa Del Sol Mijas Costa € 220.000,-
Stedelijk perceel te koop in Cerrado del Águila – Mijas
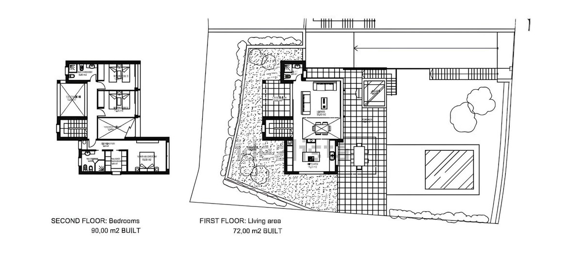
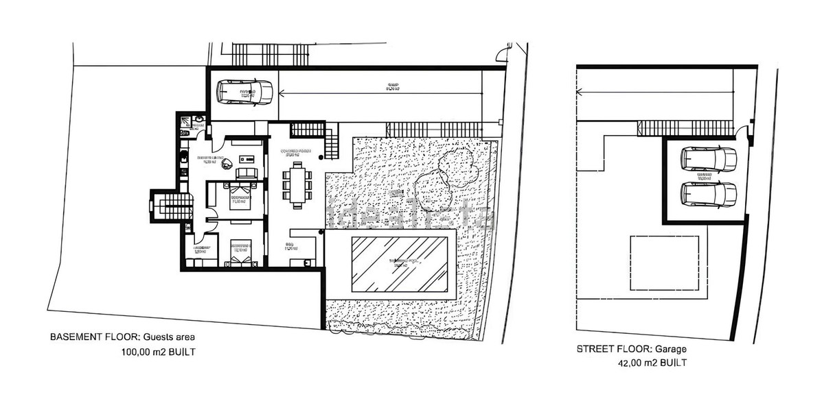
Een stedelijk perceel van 600 m² met een bebouwbaarheid van 0,24, waardoor een bebouwing van maximaal 144 m² mogelijk is. Er is een bouwvergunning beschikbaar en een bouwplan uit 2005, dat moet worden herzien en bijgewerkt volgens de huidige regelgeving.
Gelegen op het zuiden met een panoramisch uitzicht over Fuengirola, Mijas en de zee, ideaal om de hele dag te genieten van natuurlijk licht. Perfect voor een eengezinswoning met tuin, zwembad en garage.
Gelegen naast de golfbaan Cerrado del Águila, in een rustige omgeving midden in de natuur. Slechts 5 km van het centrum van Fuengirola en vlakbij het nieuwe Gran Parque de la Costa del Sol.
Onze kosten zijn inbegrepen in de verkoopprijs. De prijs is exclusief kosten die samenhangen met de aankoop, zoals notariskosten, registratiekosten en eventuele overdrachtsbelastingen (ITP, btw, AJD).
meer info